Neubau der Hauptverwaltung für die Komatsu Mining Germany GmbH.
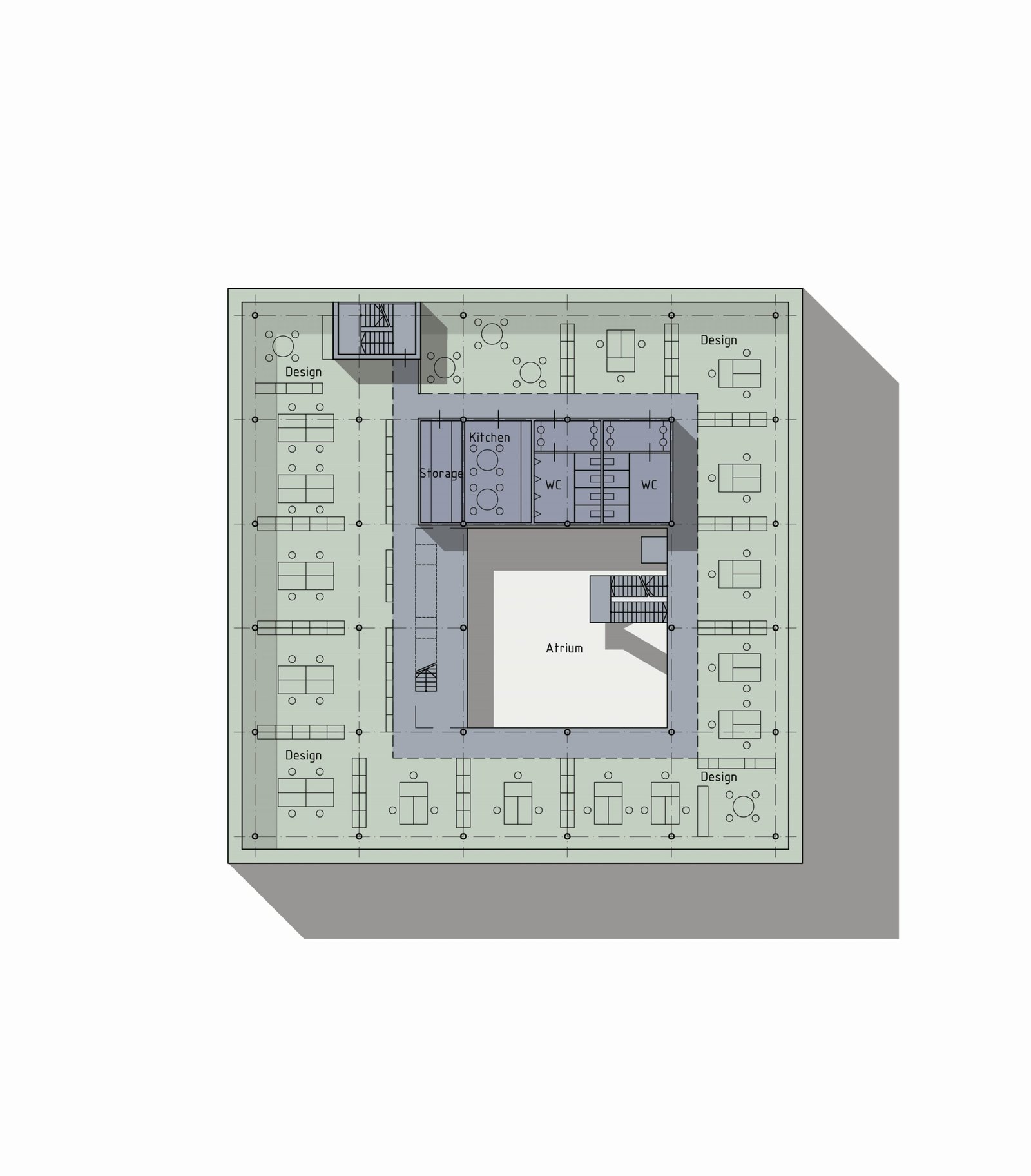
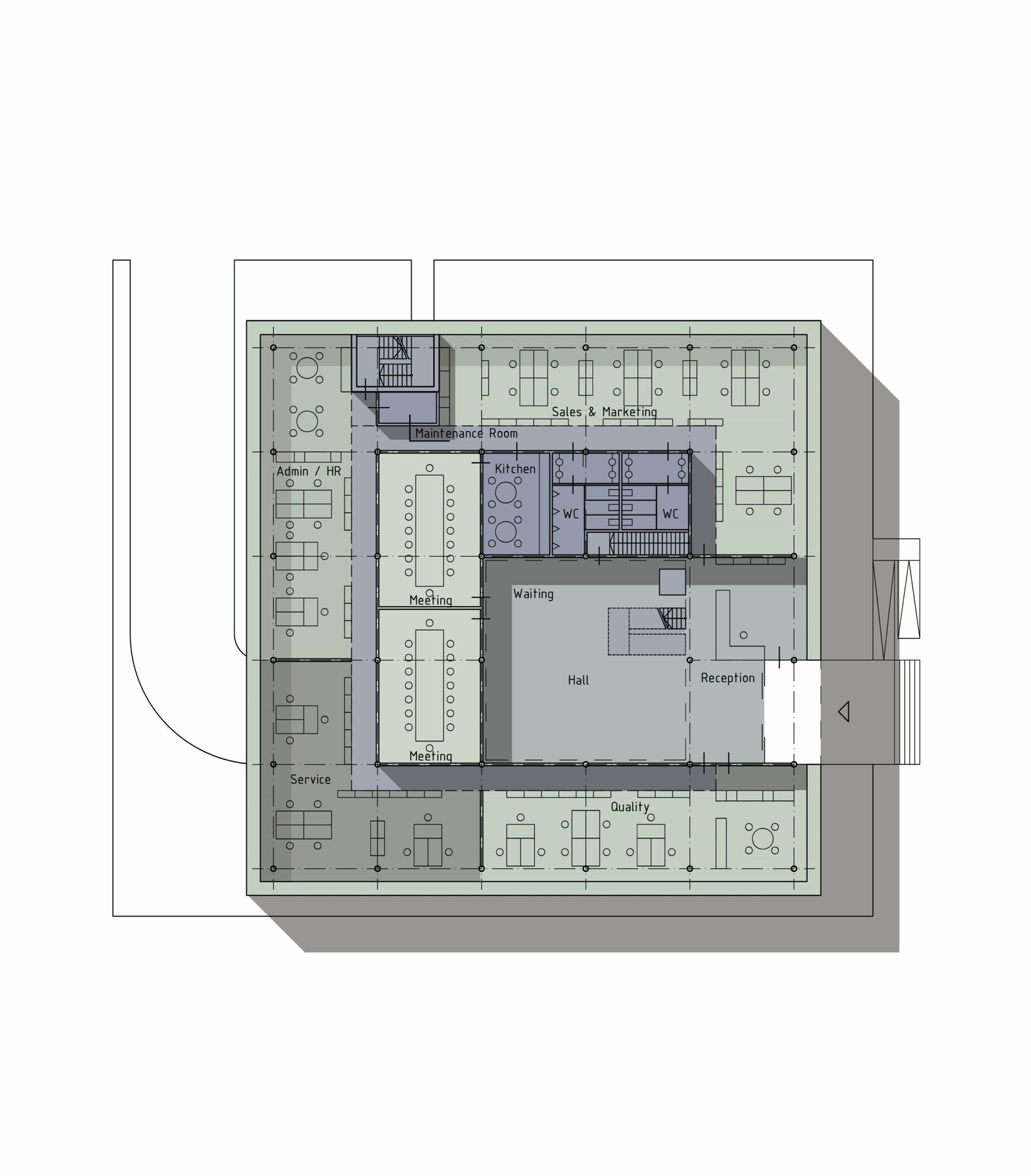
Das viergeschossige Verwaltungsgebäude ist als Stahlbeton-Skelettbau konzipiert. Dies ermöglicht eine flexible Grundrissaufteilung der Büroflächen. Ein zentraler Kern dient der Erschließung, Installationsführung und gleichzeitig als aussteifendes Element. Die beidseitig anschließenden Bürozonen sind frei einteilbar.
Der Zwischenraum der Doppel-Fassade aus zwei Glasebenen bietet Raum für einen Sonnenschutz aus textilen Screens. Außerdem wird er bei Bedarf zur passiven Kühlung genutzt, indem nachts über Lüftungsklappen Kaltluft hindurchströmt.

