Wettbewerbsbeitrag für den Neubau einer Wohnanlage in Meerbusch
An einem zentralen Kreuzungspunkt soll eine Wohnbebauung mit einem Wohnungsmix aus Zwei- bis Vierzimmerwohnungen entstehen. Der Entwurf zeigt eine zweieinhalb- bis dreigeschossige Blockrandbebauung, welche mit seinem L-förmigen Baukörper den Kreuzungspunkt städtebaulich einfasst und auf der Gegenseite einen zur öffentlichen Straße abgeschirmten Innenbereich mit privaten- als auch halböffentlichen Freiflächen bietet. Im südlichen Teil des Innenbereiches schließen zwei weitere zweieinhalbgeschossige Einzelbaukörper an, welche den Innenbereich zusätzlich eingrenzen und einen ruhigen, innenhofähnlichen Charakter mit hoher Aufenthaltsqualität für die Bewohner entstehen lassen.
Entlang des Kreuzungspunktes entwickelt der Baukörper eine zusammenhängende Struktur, welche durch unterschiedliche Geschossigkeit variiert und durch Versprünge, Einschnitte sowie Auskragungen eine charakteristische und dem Grundstück angepasste Form entwickelt.
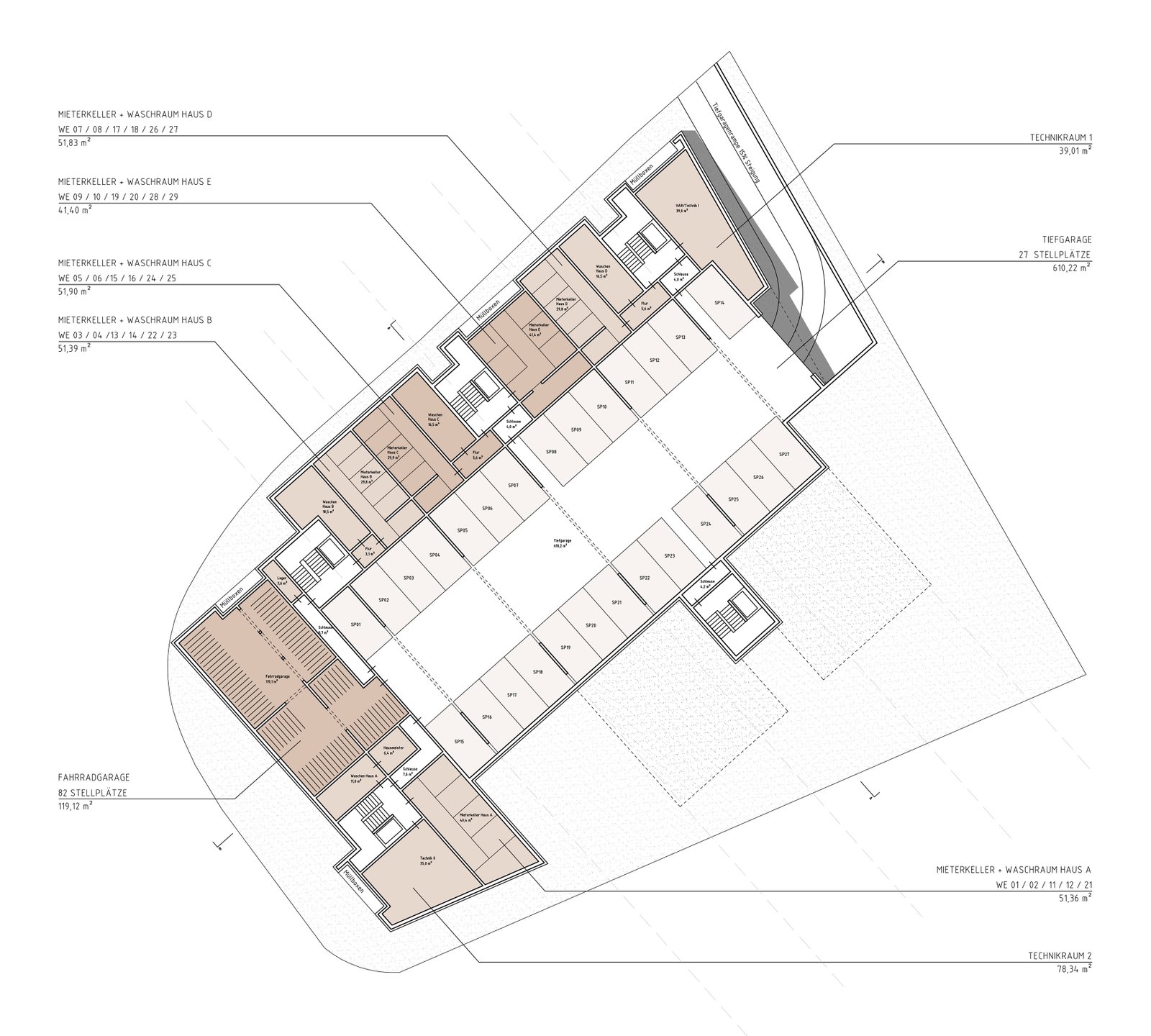
Das Erdgeschoss befindet sich ein halbes Geschoss über dem Straßenniveau, wodurch auch bei den Erdgeschoss-Wohnungen für eine angemessene Privatsphäre gesorgt wird. Darunter befindet sich halbeingegraben das Untergeschoss mit einer großzügigen Tiefgarage, Fahrradgarage sowie privaten Kellerräumen. Die Treppenhäuser sind mit einem Aufzug ausgestattet und verbinden alle Geschosse und Gebäudezugänge mit den Wohneinheiten, wodurch sämtliche Wohnungen barrierefrei erschließbar sind.
Die Hauptbaukörper sind mit rötlichen Klinker-Riemchen verkleidet. Nicht bodentiefe Fenster sowie Loggien werden auf Höhe der Brüstungen durch Werksteinelemente verbunden und vor- und zurückspringende Klinkerelemente als Fensterband optisch zusammengefasst. Die Fassade der Staffelgeschosse erhält abweichend von den Hauptbaukörpern eine hellgraue Faserzementverkleidung

