Umbau eines Lagergebäudes aus den 1960er-Jahren zu einem Ärztehaus in Düsseldorf
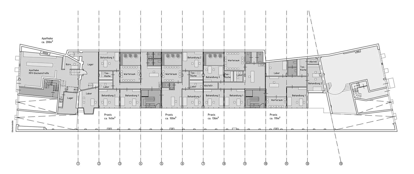
Ein leerstehendes Lagergebäude innerhalb eines Blockinnenhofs soll als Ärztehaus revitalisiert werden. Hierfür werden zwei Treppenräume inkl. Aufzug in den vorhandenen Baukörper gebaut, sowie die Fassade erneuert. Da das ursprüngliche Gebäude im Erdgeschoss nur einseitig belichtet ist, soll über die Herstellung von neuen Innenhöfen die Belichtung der innen liegenden Räume gewährleistet werden.
Die Fassade soll mit drehbaren Lamellen ausgerüstet werden, so dass trotz der großzügigen Verglasung ein Sichtschutz für die Behandlungszimmer gewährleistet ist.
Im Zuge der Baumaßnahme wird das Gebäude vollständig saniert und an die Anforderungen an eine hochwertige Immobilie angepasst. Sämtliche Haustechnische Installationen, sowie alle Boden- und Wandbeläge werden erneuert.

